一层怎么盖房最漂亮?推荐五款不同风格的设计图,一层建房不用愁
现在有能力了,就想给父母在家建一层养老房,又感觉普通的农村房子没有新意不好看,和同村人新房一比,像老房。怎么盖成了问题。其实农村建房外观简简单单装饰就已经很好看 了,室内户型合理些。老人房足够用。
今天小编就推荐五款不同风格的一层自建房设计图,让你一层建房不用愁。
第一款:现代式一层自建房设计图,带阁楼

平面图展示
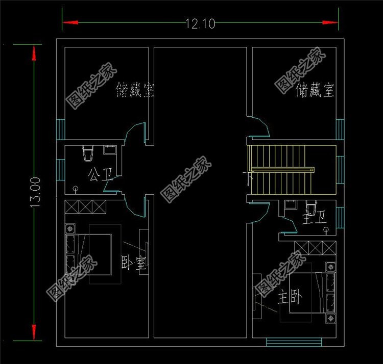
这款农村带阁楼的一层半平房设计图,住着比楼房还舒适,温馨又舒适的户型,立面灰色外墙砖与白色漆的巧妙搭配,非常大气,且具质感。屋顶为蓝色的坡屋顶,层次分明,使立面错落有致,门厅旁边的连廊,使别墅的功能更休闲,更舒适。
占地面积:12.1m*13m,170.1平方米左右
建筑高度:6.3米(含屋顶)
设计:
一层户型:客厅、厨房、餐厅、卧室X2、卧室(带卫生间)卫生间、杂物间
阁楼户型:卧室(带卫生间)、卧室、卫生间、杂物间X2

平面图展示

平面图展示
第二款:新中式一层别墅设计图以及户型图,带地下室

平面图展示
这款带地下室的一层别墅户型设计图,农村自建房推荐这样的方案,地下室可以当酒窖或者储物间(大小施工时可以自行调整),厨房就在餐厅的旁边。四个卧室,家里有老人也可以一起住,还配有内卫,造价经济,住起来也十分舒适,建起来气派,农村建房就选它。
占地面积:17.46m*12.56m,206平方米左右
建筑高度:7.051米(含屋顶)
设计功能:
地下室:酒窖
一层户型:客厅、厨房、餐厅、卧室X2、卧室(带卫生间)X2、卫生间

平面图展示

平面图展示
第三款:简欧式一层自建房设计图,大户型

效果图展示
这款农村大户型一层平房自建房设计图,美观大气,面宽将近19米,本户型格局方正,结构紧凑,功能分布合理,通风采光恰到好处,建一栋这样的小别墅散落在苍翠树木的掩映之中,置身其中恍如远离了所有的都市尘嚣,宁静。
占地面积:18.76m*12.66m,245.1平方米左右
建筑高度:7.048米(含屋顶)
功能:
一层户型:客厅、厨房、餐厅、卧室X3、卧室(带卫生间和衣帽间)、卧室(带卫生间)、卫生间X2

平面图展示
第四款:欧式一层别墅设计图,带堂屋

效果图展示
这款一层新农村自建别墅效果图。色彩比较明亮,屋顶蓝色斜坡更显别致,老虎窗为点睛之笔。八角窗的设计,让整个建筑非常时尚又舒服。入户是堂屋设计,可摆放神位,非常适合农村生活习惯。客厅和餐厅通透明亮,通风采光极佳。格局合理,基本满足农村三代同堂居住需求。
占地面积:18.76m*11.66m,198.41平方米左右
建筑高度:6.34米(含屋顶)

平面图展示
第五款:实用型一层自建房设计图,多窗设计

效果图展示
这款一层4间自建房别墅图纸,简单实用。入户既是玄关,与客厅连接一起,使空间更加宽敞,餐厅和厨房相连,用餐方便,两间卧室朝北,一间朝南,有独立卫生间。外观精致漂亮,真正做到了好货也便宜。
占地面积:17.5m*9.5m,162.13平方米左右
建筑高度:6.225米(含屋顶)
户型:玄关、客厅、卧室(带卫生间)、卧室x2、卫生间、厨房、餐厅

平面图展示
看完设计图解决你的烦恼了吗?建房是大事,要慎重选择哦!本文由图纸之家原创,欢迎关注,带你一起长知识!





















